Biuro, hala magazynowa, wysoki standard/ Złotoria.

Biuro na wynajem
18 000,00 PLN , Pow. 620 m2
Drukuj ofertę
Drukuj ofertę
Typ nieruchomości:
Komercyjny
Powierzchnia:
620 m2
Typ transakcji:
wynajem
Lokalizacja:
Złotoria
Rok budowy:
2024
Piętro:
0 na 1
Numer oferty:
LAR161893
Cena za m2:
29,03 PLN
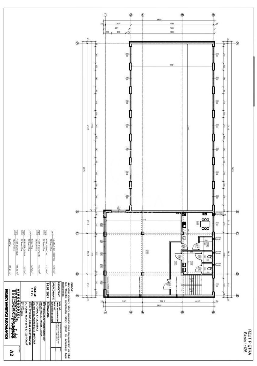
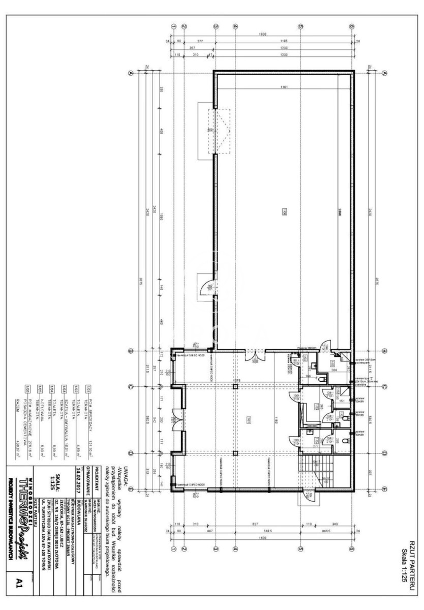
Nowa oferta wynajmu, nowoczesnego dwukondygnacyjnego lokalu biurowego z halą magazynową o łącznej powierzchni 620 m2, zlokalizowanego w Złotorii. 
Lokal znajduje się w nowoczesnym budynku z monitoringiem i klimatyzacją, oddany do użytku  2024 roku.

*** Powierzchnia pod biuro / usługi - 320 m2, ***
*** Powierzchnia hali magazynowej  - 300 m2 ,***

Istnieje możliwość podziału lokalu z dopasowaniem ilości pomieszczeń, można zrobić to na kilka sposobów, według potrzeb przyszłego najemcy. Nieruchomość usytuowana jest na działce o powierzchni  2000 m2.

Zalety lokalu:
- jasny, słoneczny,
- rolety w oknach,
- budynek ogrodzony / monitorowany,
- klimatyzacja i rekuperacja w każdym pomieszczeniu,
- na dole i na górze 2 łazienki, 2 toalety, 2 pomieszczenia socjalne,
- serwerownia,
- doskonale skomunikowany w bardzo dobrze rozwiniętej infrastrukturze,
- duży parking, z placem manewrowym dla dużych pojazdów,

Cechy lokalu:
- budynek murowany z suporeksu,
- docieplony wełna plus styropian o grubości 20 cm,
- strop lany,
- dach biurowca docieplony styropianem spadkowym o grubości 30 cm,
- dach hali magazynowej pokryty płytą warstwową z pianką pur o grubości 10 cm,
- stolarka okienna nowe PCV,
- moc przyłączeniowa 12,5 KW,
- ogrzewanie podłogowe,
- pompa ciepła,
- klimatyzacja, rekuperacja,

Obiekt spełniający wymagania dużych firm, idealnie nadaje się do wszelkiego rodzaju działalność biurowych / handlowych / usługowych z dodatkową halą magazynową.

Opłaty:
czynsz 18.000 zł + prąd, media,
Kaucja - jednokrotność kwoty najmu.
Jednorazowa opłata dla biura nieruchomości wartość jednomiesięcznego czynszu najmu.

Zapraszam do kontaktu oraz na prezentację.
Fabian Mulewski
Tel: 690 020 283
Nr. Licencji 29006
f.mulewski@biurolaroca.pl
Niniejszy opis ma charakter informacyjny i nie stanowi oferty wg kc.




Dodatkowe informacje:

1. Świadczymy bezpłatne doradztwo kredytowe.  Zadzwoń i sprawdź swoją zdolność kredytową z profesjonalistą (na rynku od 18 lat) - 690 020 207. 
Nasz doradca świadczy usługi również w terenie - może dojechać w umówione miejsce.


2. Wszystkie prezentacje są bezpłatne. Usługa pośrednictwa jest płatna w przypadku zakupu nieruchomości.

3. Opis oferty sporządzany jest na podstawie oględzin nieruchomości oraz informacji uzyskanych od właściciela, może podlegać aktualizacji.
Powyższa oferta ma charakter informacyjny i nie stanowi oferty handlowej w rozumieniu Kodeksu Cywilnego.

Nieprawidłowy adres E-mail